Leave a Message

Thank you for your message. We will be in touch with you shortly.

Explore Our Properties

Property Description

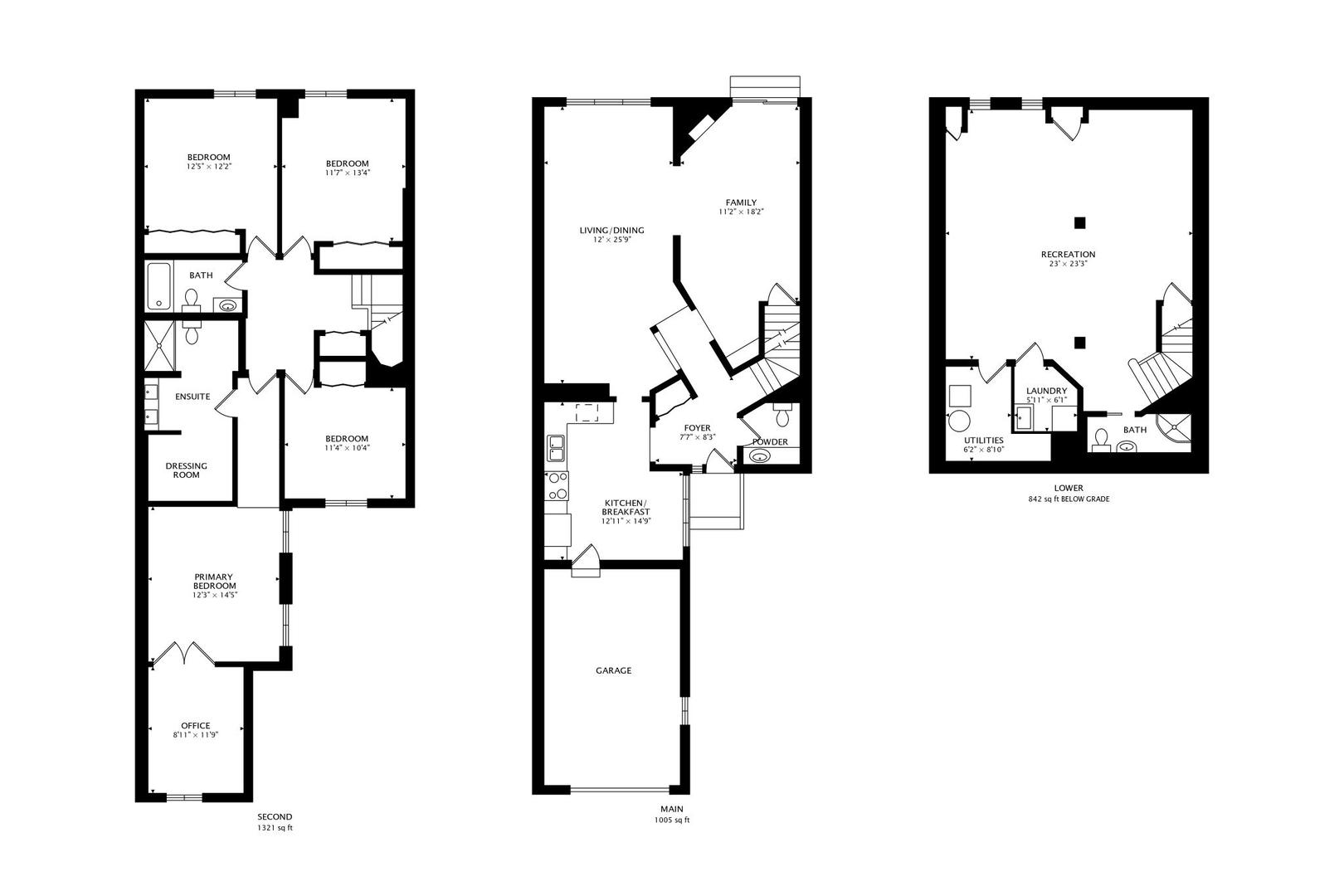
**MULTIPLE OFFERS RECEIVED. Best and final offers are due Monday, March 31 at 6pm** Don't miss this spacious 4 bedroom, 3.5 bath townhome in award-winning School District 30. This home lives like a single family home! Newly refinished hardwood flooring on main level, stairs and 2nd floor landing. Kitchen features custom cabinets, stainless steel appliances, plus table space for an eat-in area too. The dining room opens to the living room creating a comfortable entertaining space. The family room is just adjacent with a fireplace and sliding doors to patio overlooking a professionally landscaped yard. Upstairs you'll find a fabulous HUGE primary bedroom ensuite with a walk in closet, this space could also be used as an office, sitting room, or nursery. There is also an updated primary bathroom with dual vanities and a separate shower. Three more spacious bedrooms are located on 2nd floor with plenty of closet space, sharing an updated hall bath with tub. On the lower level, you'll find a fully finished basement with recessed lighting, storage and a full bath as well as a laundry room. Enjoy living in this maintenance free home on a cul de sac in the heart of Northbrook! Updates include: New Gas Stove (2025), New Furnace (2024) New Water Heater (2024) New Dishwasher (2021), New Roof (2019), New A/C (2019), New Sump Pump (2018) New Windows (2015), and new interior painting and lighting too. Move-in ready! Walk to schools and parks. Easy access to highways. No rentals, pets are welcome.

Overview

Property Status
Sold
MLS ID
12305004
Property Type
Townhouse
Year Built
1978

Features & Amenities

Stories
2
Garage Spaces
2.0
Water Source
Lake Michigan
Roof
Asphalt
Lot Features
Cul-De-Sac, Landscaped, Backs to Open Grnd
Parking
Concrete, Garage Door Opener, Garage, On Site, Garage Owned, Attached, Detached
Heat Type
Natural Gas
Air Conditioning
Central Air
Laundry Room
Washer Hookup, In Unit, Sink
Fireplace
Gas Log, Gas Starter
Appliances
Range, Microwave, Dishwasher, Refrigerator, Washer, Dryer, Disposal, Stainless Steel Appliance(s), Gas Cooktop, Gas Oven, Humidifier
Other Interior Features
Storage, Walk-In Closet(s), Dining Combo, Granite Counters
Sewer
Public Sewer
Substructure
Concrete Perimeter
HOA Amenities
Privacy Fence
Other Exterior Features
Lighting
Elementary School
Wescott Elementary School
Middle School
Maple School
High School
Glenbrook North High School
School District
225
Sales Price
$605,000
Real Estate Tax
$8,061/yr
HOA
$385/mo

Downloads

2545 Windsor Lane

Schedule a Tour

I would love to help you see this beautiful home! As a full-service agent, I can help you tour. Please submit an offer, and answer questions about the buying process.

Enter a valid email

Thank you

for your interest in 2545 Windsor Lane, Northbrook, IL 60062

back to page
2545 Windsor Lane
Navigate

I'm Interested In

2545 Windsor Lane

or
  • CallAudra Casey

    License #475164955

    (847) 208-8779
  • Follow Us On Instagram