Leave a Message

Thank you for your message. We will be in touch with you shortly.

Explore Our Properties

Property Description

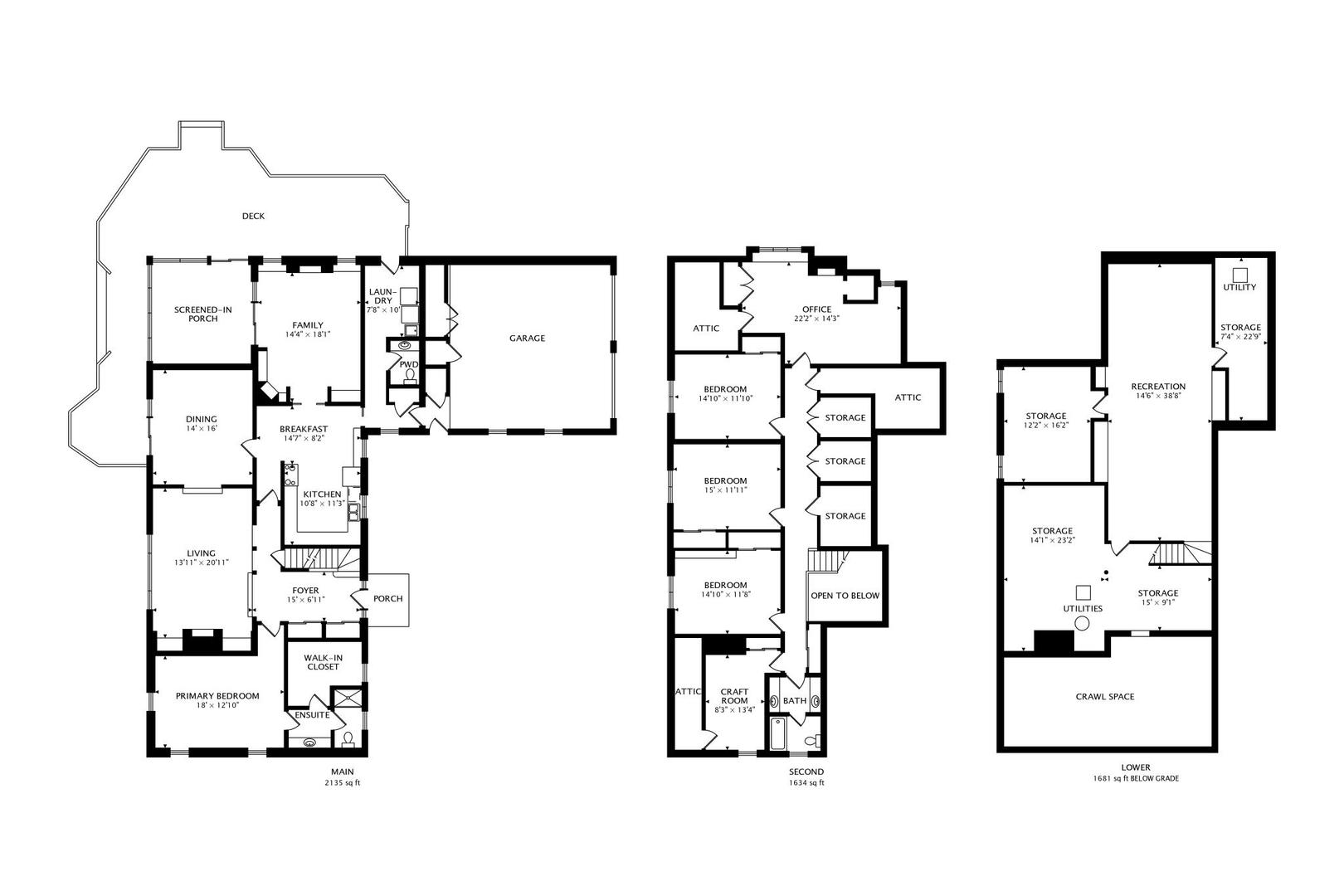
**MULITPLE OFFERS RECEIVED, BEST AND FINAL OFFERS DUE APRIL 2 AT 6PM CST**You simply won't find another home like this - tucked away on a wooded east Northbrook 1.14-acre parcel, this center-entry Cape Cod charmer offers over 3,700 sq. ft. of living space, plus an additional 1,700 sq. ft. in the lower level-all within award-winning District 28/225.Besides the one-of-a-kind lot size, this home offers a main-floor primary bedroom with an ensuite bath and walk-in closet, not one, but TWO (2) office spaces upstairs, including a traditional office with vaulted ceilings, skylights, and a fireplace, as well as a craft room with thoughtful built-ins. A timeless foyer welcomes you with an open staircase and beautiful views of the living room and wooded views. The living room features a fireplace flanked by stunning floor-to-ceiling built-ins, creating an elegant and inviting space that flows into the formal dining room. The spacious kitchen offers an eat-in area, abundant cabinetry, and generous counter space. Conveniently located next to the kitchen, the comfortable family room features another fireplace, built-ins, and a wet bar, with sliders opening to a screened-in porch overlooking the expansive, private yard. Upstairs, you'll find three oversized bedrooms with hardwood floors, large closets, and abundant natural light, along with a classic hall bath featuring dual sinks and timeless tilework. There is also SO MUCH STORAGE, perfect for all your extras or even creating additional living space. The finished lower level offers even more versatility, with a newly carpeted rec room, a workshop area, and extensive storage. A large laundry/mudroom off the attached garage provides exceptional convenience. Step outside to enjoy unparalleled serenity from the screened-in porch and wraparound deck, all while surrounded by the natural beauty of your own private 1+ acre retreat. All this, in an in-town location just blocks from downtown Northbrook, offering shops, restaurants, grocery stores, the Metra station, and forest preserves. Experience the perfect blend of privacy and convenience in this rare and remarkable home!

Overview

Property Status
Sold
Lot Size
1.14 Acres
MLS ID
12322385
Property Type
Residential
Year Built
1969

Features & Amenities

Architecture Styles
Cape Cod
Garage Spaces
2.0
Water Source
Lake Michigan, Public
Roof
Shake
Lot Features
Wooded, Mature Trees, Backs to Trees/Woods
Parking
Asphalt, Circular Driveway, Garage Door Opener, On Site, Garage Owned, Attached, Driveway, Owned, Garage
Heat Type
Natural Gas, Forced Air, Zoned
Air Conditioning
Central Air
Laundry Room
Main Level, In Unit, Sink
Fireplace
Wood Burning, Gas Starter, More than one
Appliances
Range, Dishwasher, Refrigerator, Washer, Dryer
Other Interior Features
Cathedral Ceiling(s), Wet Bar, 1st Floor Bedroom, 1st Floor Full Bath, Built-in Features, Walk-In Closet(s), Bookcases, Open Floorplan, Separate Dining Room
Sewer
Public Sewer, Storm Sewer
Elementary School
Meadowbrook Elementary School
Middle School
Northbrook Junior High School
High School
Glenbrook North High School
School District
225
Sales Price
$1,256,250
Real Estate Tax
$18,316/yr

Downloads

1100 Hillside Road

Schedule a Tour

I would love to help you see this beautiful home! As a full-service agent, I can help you tour. Please submit an offer, and answer questions about the buying process.

Enter a valid email

Thank you

for your interest in 1100 Hillside Road, Northbrook, IL 60062

back to page
1100 Hillside Road
Navigate

I'm Interested In

1100 Hillside Road

or
  • CallAudra Casey

    License #475164955

    (847) 208-8779
  • Follow Us On Instagram